聖志企業有限公司
首頁
關於我們
防水系統
耐磨地坪系統
產品介紹
施工實績
聯絡我們
花台
HOME
防水系統
防水材
自黏式防水膜
熱熔式防水毯
複合式防水材
熱熔防水膠
橡膠瀝青防水膠
隔熱材
耐磨地坪材
關於我們
企業簡介
企業歷史與獲獎
社會責任
防水工程經驗談
防水系統
屋頂平台防水隔熱
外露型屋面防水隔熱
屋頂花園
地下室頂版植栽區
地下室頂版面磚區
浴廁
窗框
陽台
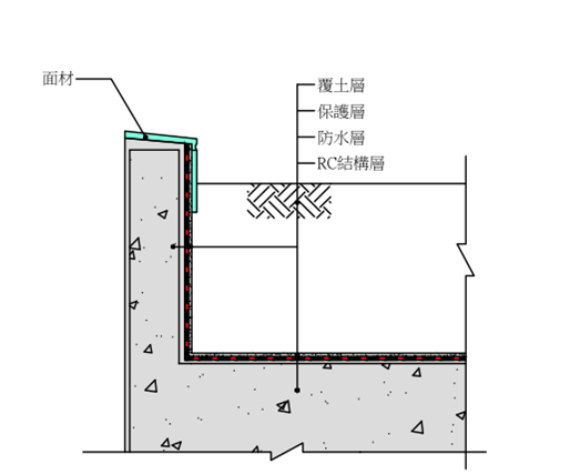
花台
外雨遮
樓層接縫
結構外牆
水池
生活水箱
地下水箱
地下室外牆
地下室牆面止水帶
地下室內牆導水牆
地下室底版大底防潮
地下室BS版防潮
耐磨地坪系統
斜坡車道耐磨地坪
停車場耐磨地坪
機房耐磨地坪
產品介紹
防水材
隔熱材
耐磨地坪材
施工實績
公共工程
電子廠房
集合住宅
金融商辦
聯絡我們
TOP